Experience professional video conferencing built for businesses that value privacy, flexibility, and brand ownership.
Try Veeting FreeRun secure, high-impact virtual meetings: from brainstorming to webinars, all in your browser. No downloads, no compromises and fully private.
Veeting Rooms delivers all-in-one video conferencing built for small to medium-sized businesses that need flexibility, security, and seamless collaboration.
Start Free TrialLet your audience engage with your brand, not ours. Veeting Corporate gives you fully white-labeled video conferencing on your own domain with complete control over branding, data, and user experience.
Perfect for enterprises and partners who want to own their video presence from login to logout.
Explore White-Label OptionsEmbed powerful video collaboration into your app with just a few lines of code. Veeting Blocks gives developers ready-to-use web components powered by WebRTC, no complex backend required.
Build custom video solutions quickly and integrate seamlessly, all while keeping full control of the experience.
See API DemoFlexible video positioning lets you adapt the layout on the fly: move videos anywhere to focus on what matters.
Space-optimized screen design means your presentations stay front and center in full resolution.
Intuitive, tab-based design lets you switch seamlessly between video, documents, whiteboard, and notes, all without losing your train of thought.
Refined through years of real-world use and customer feedback to maximize productivity.
Advanced users can split the screen three ways, perfect for taking minutes while following a live presentation.
Every touchpoint reflects your brand, from login screens to meeting rooms. We apply your logo, colors, and visual identity seamlessly across the platform.
The Veeting brand? Completely invisible to your users.
Host video meetings under your own domain name for a truly seamless brand experience.
Customize everything: brand assets, user settings, notification emails. Every interaction reinforces trust in your company.
Support up to 30 active participants in interactive meetings, or scale to 250+ attendees for webinars and large events, all with crystal-clear video and audio.
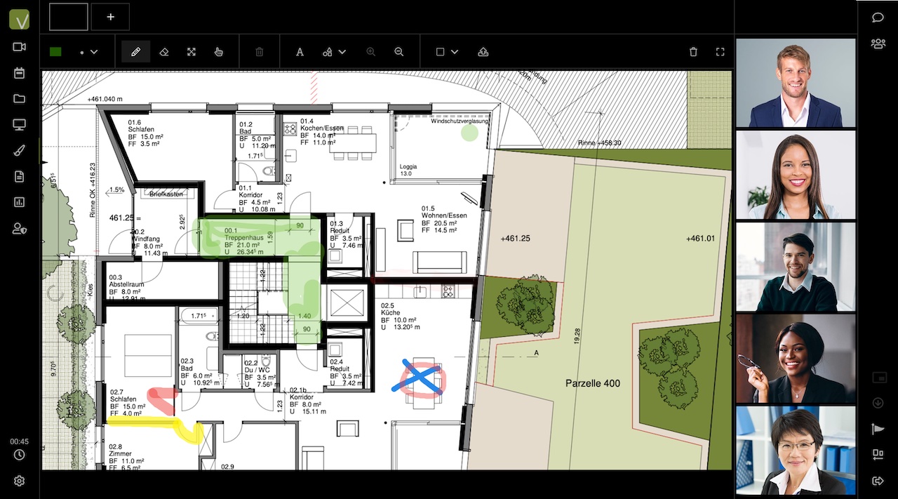
Turn ideas into action with an interactive whiteboard. Draw freehand, add shapes, and collaborate visually in real time with your team.
Export everything as a PDF when you're done, perfect for follow-ups and documentation.
Share your entire screen or just a single application window, whatever works best for your presentation.
Attendees can view in full-screen mode and follow your cursor movements in crisp, high-quality resolution.
Upload and present documents instantly: PDFs, slides, spreadsheets, without switching apps. Perfect for collaborative reviews and real-time discussions.
Use the laser pointer tool to guide attention exactly where you need it.
Documents can be securely deleted from our servers after your meeting ends.
Capture decisions and action items in real time as the meeting unfolds, no need for separate note-taking tools.
At the end of the meeting, everyone automatically receives a summary email with all notes and tasks.
Host professional webinars with real-time layout control. Highlight key speakers, resize video feeds on the fly, and create a polished, TV-quality viewing experience.
Run large-scale online and hybrid events with broadcast-quality output. Stream directly to YouTube, LinkedIn, or any RTMP platform using OBS or our built-in cloud encoder.
Build a complete video conferencing solution with just a few lines of JavaScript, no backend infrastructure required.
Already have an app? Drop in Veeting Blocks web components to add video calls, screen sharing, and collaboration tools instantly.
Mix and match web components to build exactly what you need: a full-featured video platform or a lightweight, niche solution tailored to your market.
Total flexibility, zero complexity.
Transitioning from live to on-demand often exposes imperfections from the original event. We have partnered with xtendx to produce markedly more professional webinar recordings and significantly enrich the on-demand webinar experience.
As any small company competing with the big players knows, we need to differentiate and go the extra mile to win customers. When we were approached by the medical department of a university with a very specific request, we jumped in.
Our Partner and Reseller Portal allows you to set up an unlimited number of white label video conferencing solutions. It provides statistics, configuration and branding options, as well as tools to support your customers.












